Beschreibung
Parameter
Teil von Set
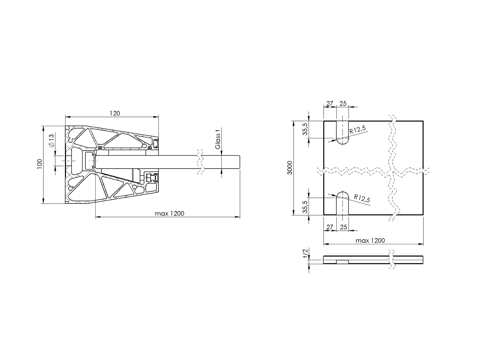
Canopy with aluminium channel profile FIX +1.5° AL/PR7-3000-N-E
Anchoring peg for shelter PR7 A19/PR7-1
Diffuser for LED profile A19/23x24-LED-PVC
Cover for self-supporting glass canopy AL/PR7-3-6000-N-E
Glass inlay A19/PR7-3-013-03.0
Glass inlay A19/PR7-3-017-03.0
Glass inlay A19/PR7-3-021-03.0
End cap for profile AL/PR7-5-N-E
Hexagon socket set screw with flat point, AISI304, M6x35 A-DIN 913-A2 M6x35
Hexagon nut, stainless steel A-DIN 934 M6
Hexagon socket button head screw, AISI304, M6x12 A-DIN 7380-A2 M6x12
Hexagon socket head cap screw, AISI304, M6x20 A-DIN 912-A2 M6x20
Square nut, stainless steel A-DIN 562 M6
Anchoring peg for shelter PR7 A19/PR7-2
