Beschreibung
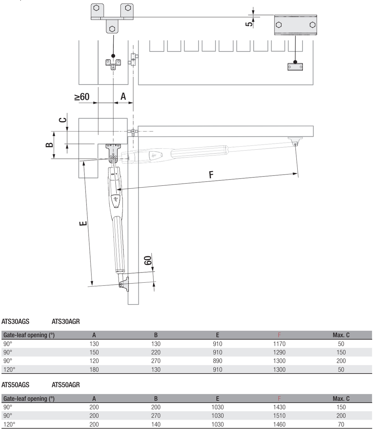
Possibility to anchor the drive on a wide post, the distance from the axis of the gate wing hinge to the edge of the post can be up to 200mm.
Parameter
Mark
Information about producer of product
Came
Max. wing length
Maximum wing length for the given drive
5m
Recommended weight of the wing
Odporúčaná hmotnosť krídla brány pre správnu funkčnosť pohonu.
200kg
Drive slowdown
Information about the drive slowing down before the end position.
Drive not decelerate
Type
Threaded
Frequency (MHz)
Určuje frekvenciu ovládača a riadiacej elektroniky.
433
End point
Information about the need for gate end stops with the selected drive.
No need end points
Code type
Typ kódu pre správnu kombináciu ovládača s elektronikou.
Multi (fix/rolling)
Power supply
Type and value of the power supply voltage
AC 230V
Motor power supply
Type and value of the motor supply voltage
AC 230V
Performance
250W
Force
400-3000N
Speed
Parameter of the drive feed speed
90° - 20s
Controller
ZF1
Capacitor
10uF
Teil von Set
CAME drive for swing gate ATS-50-AGS
2 pcs
Mark
Came
Max. wing length
5m
Recommended weight of the wing
200kg
Electronics cabinet for double-leaf gate ZF-1N
1 pcs
Mark
Came
Radio card 433,9 MHz AF-43-S
1 pcs
Mark
Came
Remote controller CAME TOP roling code, 4CH, CAME TOP44RBN
1 pcs
Mark
Came
Frequency (MHz)
433
Code type
Rolling
Photocell for plaster montage max. 10m DIR-10
1 pcs
Mark
Came
Power supply
12-24V AC
Protection level
IP54


