Beschreibung
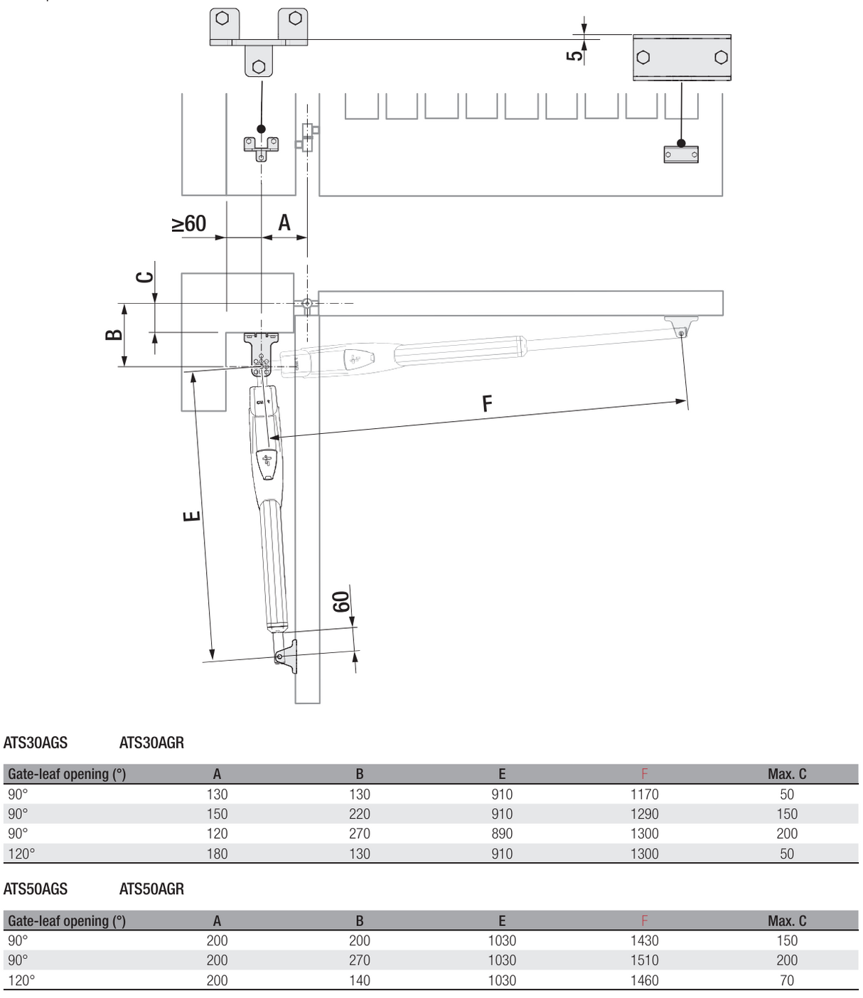
Introducing the ATS-3-AGS drive, a top model from the Came brand, designed for swing gates with large and wide posts. The distance from the hinge axis to the edge of the post can be up to 200 mm. This version of the drive uses alternating current (AC), which brings several significant advantages for demanding users.
Advantages of the AC version:
- Power and Stability: The AC drive provides constant power even under high load, ensuring reliable operation even for heavy and large gates, even in windy weather.
- Durability and Long Life: AC motors are known for their robustness and durability, which means less maintenance and a longer lifespan for the entire system.
- High Efficiency: AC drives operate with high efficiency, minimizing energy losses and ensuring efficient operation.
- Easy Installation: The AC version of the ATS drive is designed for quick and easy installation, saving time and costs during assembly.
- Compatibility with Various Installations: The AC drive is ideal for a wide range of applications, including residential and commercial gates, and is capable of operating in various climatic conditions.
Basic Features:
- Electromechanical Drive: The ATS-3-AGS uses a reliable electromechanical system for smooth and efficient gate movement.
- Automatic Closing: The automatic closing feature increases the convenience and security of your gate.
- Manual Release Option: In the event of a power outage, the drive can be easily manually released, allowing immediate access.
- Integrated Safety Features: Advanced safety features ensure property protection and safe gate operation.
The ATS-3-AGS is the ideal solution for anyone looking for a reliable and powerful drive for swing gates. Contact us for more information or to obtain a quote!
Parameter
Teil von Set
CAME drive for swing gate ATS-30-AGS
Electronics cabinet for double-leaf gate ZF-1N
Radio card 433,9 MHz AF-43-S
Remote controller CAME TOP roling code, 4CH, CAME TOP44RBN
Photocell for plaster montage max. 10m DIR-10


